Mapa   Ficha
LOCAL EN VENTA EN CALLE PLASENCIA, BARRIO PROSPERIDAD, SALAMANCA
Salamanca (Rollo) - REF. 1854

100 m2
venta: 88.900 €
Descripción

Local en venta en Calle Plasencia – Barrio Prosperidad/Delicias, Salamanca | Inmobiliaria Cylar

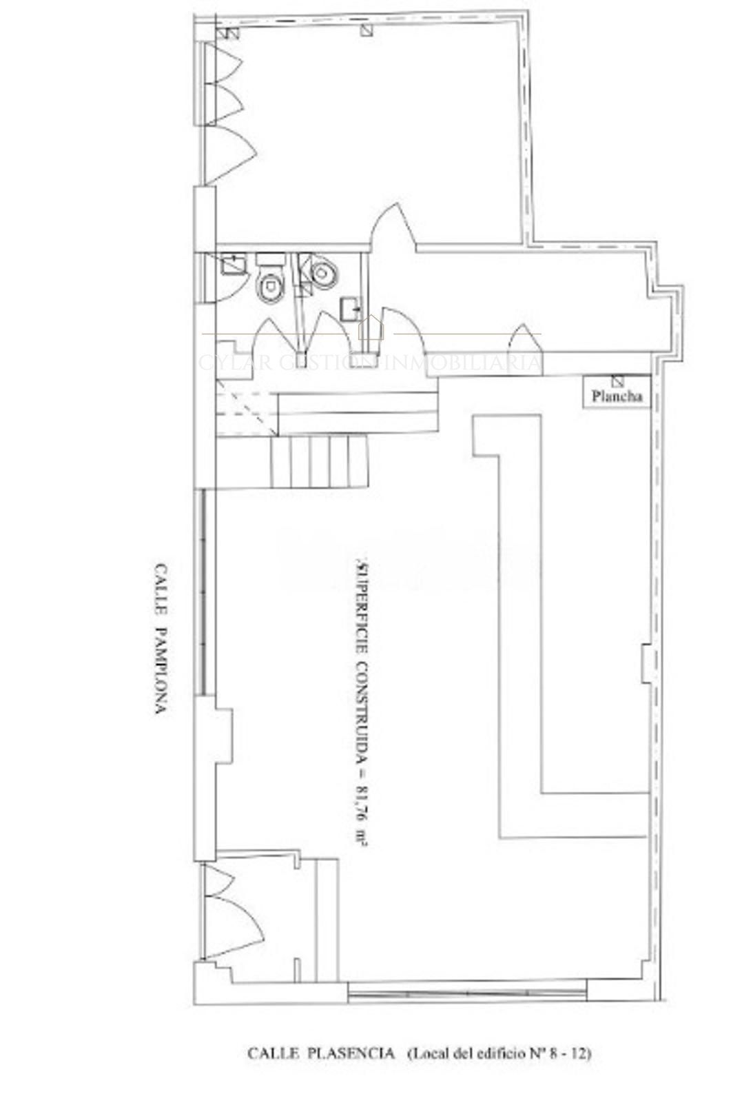
Cylar Inmobiliaria te ofrece este local en planta baja a pie de calle en una zona con gran tránsito peatonal, entre los barrios Prosperidad y Delicias.

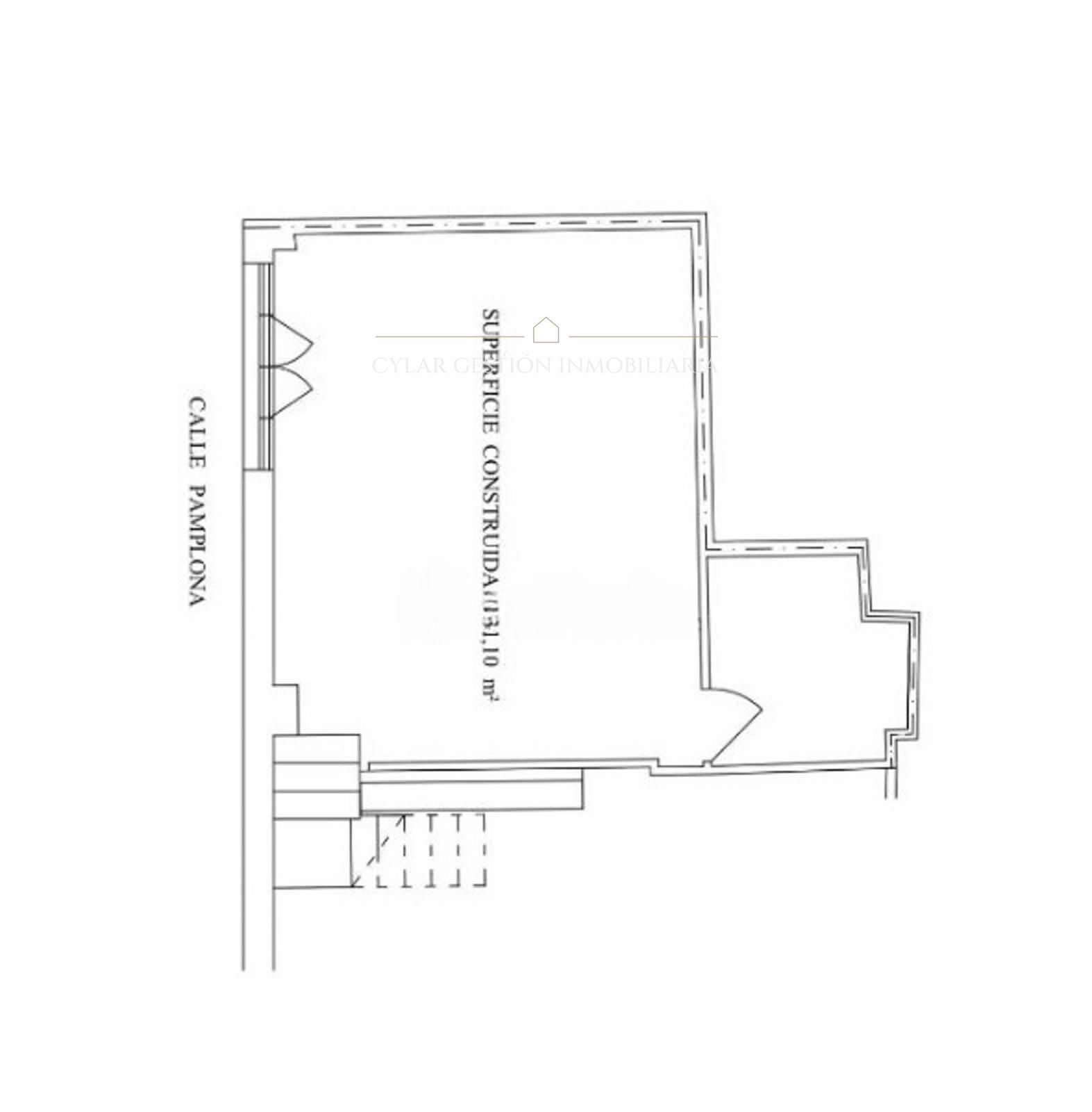
Cuenta con 100 m² construidos distribuidos en dos plantas. En la planta principal dispone de zona comercial con 3 amplios escaparates, varias estancias y salida de humos, ya que su último uso ha sido como cafetería. La cocina se encuentra completamente equipada y el local dispone de aire acondicionado, sistema de alarma y zona de almacén/archivo.

En la planta superior tipo altillo de 30 m², dispone de aseo y espacio adicional muy versátil.

El inmueble cuenta en total con 4 estancias y 3 aseos, y se encuentra en buen estado de conservación.

Por sus características y distribución, ofrece múltiples posibilidades de uso: continuidad como hostelería, alojamiento turístico (muy demandado en la zona), comercio, despacho profesional, garaje u otros negocios.

Una excelente oportunidad de inversión en una ubicación consolidada y con gran visibilidad.

Certificado de eficiencia energética pendiente de solicitar a la propiedad. Este anuncio no es vinculante y puede contener errores, se muestra a título informativo y no contractual. REF. 1854.

Visita nuestra página web www.cylarinmobiliaria.com y nuestras redes sociales porque hay inmuebles que por expreso deseo de los propietarios no están publicados en los portales inmobiliarios.

WhatsApp: 690 752 309 / 660 912 258.

Características
Precio Venta 88.900 €
Año de construcción 1972
Construidos 100 m2
Precio/m² 889 €/m²
Cocina Amueblada
Estado Buen estado
Aire acondicionado
Salida de humos
Calificación Energética (C) VER
Luz
Agua
Alarma interior
Ubicación
La dirección del inmueble es aproximada.
Escalas de eficiencia


-
-

Contáctanos

Si deseas más información sobre esta propiedad, por favor, rellena el formulario.

 Sí, he leído y/o acepto las Condiciones de uso y la Política de privacidad